文档详情

节制闸建设应急工程施工图2023优质

pdf
6.94MB
约31页
135
2024-03-26
节制闸建设应急工程施工图2023_第1页
1/31
节制闸建设应急工程施工图2023_第2页
2/31
节制闸建设应急工程施工图2023_第3页
3/31
节制闸建设应急工程施工图2023_第4页
4/31
节制闸建设应急工程施工图2023_第5页
5/31
节制闸建设应急工程施工图2023_第6页
6/31
节制闸建设应急工程施工图2023_第7页
7/31
节制闸建设应急工程施工图2023_第8页
8/31
节制闸建设应急工程施工图2023_第9页
9/31
节制闸建设应急工程施工图2023_第10页
10/31
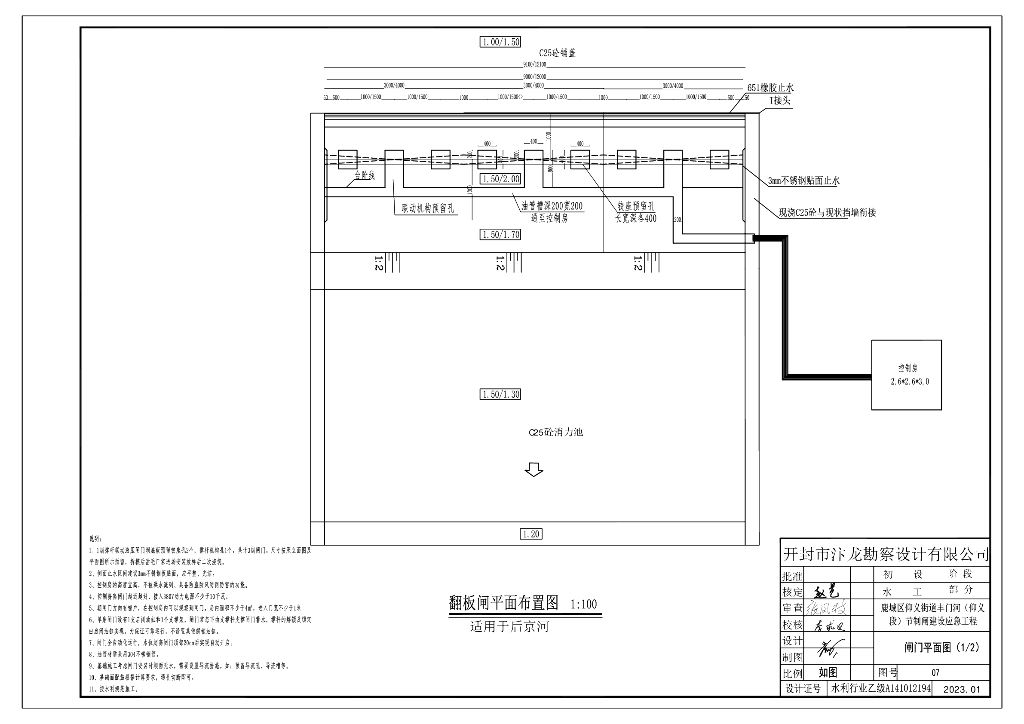
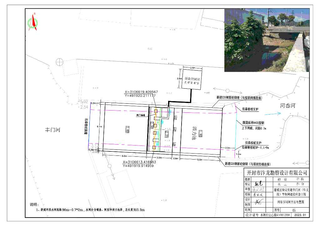
题目:节制闸建设应急工程施工图2023格式:PDF文档页数:33P简介:本次设计涉及4座水闸新建,新...

✅当您赞助下载文档后,并不意味着购买了版权,不得用于商业用途(直接或间接盈利)。
✅本站所有内容均由热心网友分享,本站不对文档的完整性、正确性做任何保证!文档内容仅供预览参考。

✅十六年老网站,赞助会员全站免币!每天更新!
✅本站已经工信部、公安部备案,真实可信!

1、打开文档需要使用基本的办公软件,如Word、Office、WPS、Pdf、Cad、Rar、Zip等。

2、如遇下载失败、解压失败、文档缺失等问题,请通过【反馈】按钮提交。

下载文档
确认删除?