文档详情

重庆市装配式农房建设图集(2024年)装配式钢结构(3#户型)优质

pdf
41.4MB
约188页
49
2025-08-21
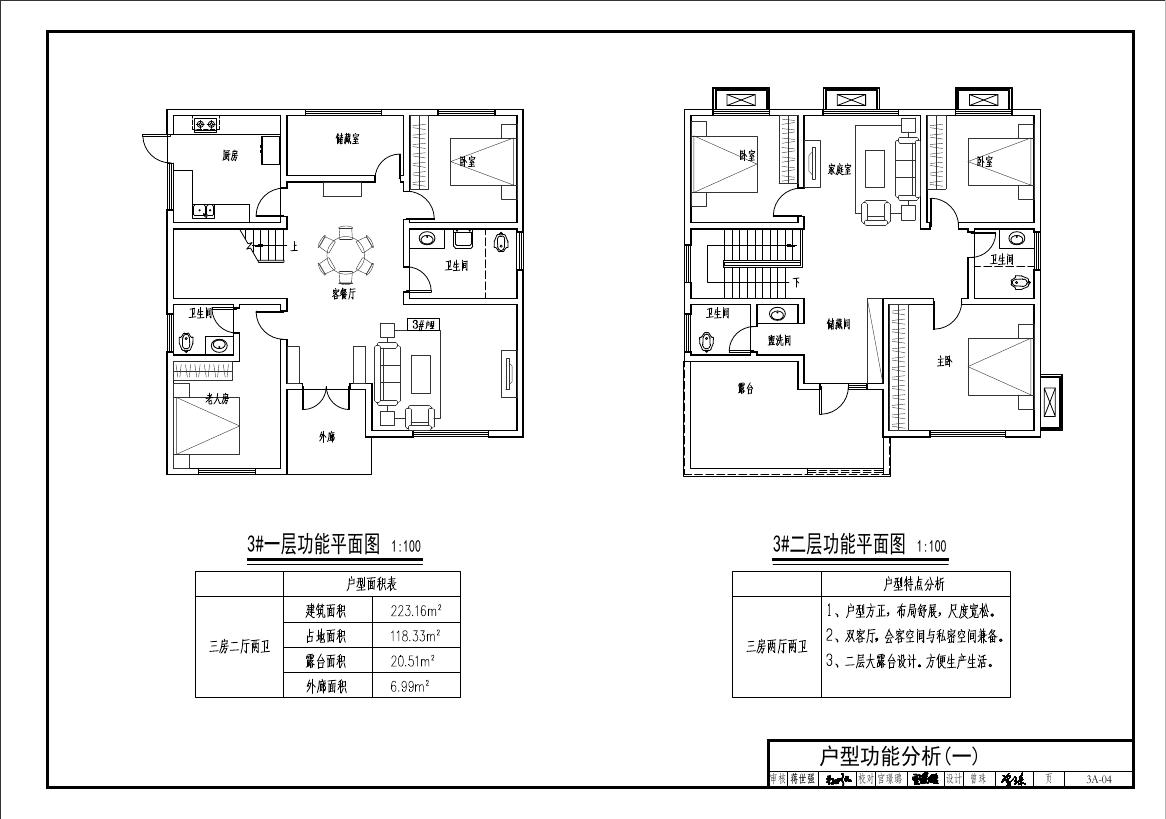
重庆市装配式农房建设图集(2024年)装配式钢结构(3#户型)_第1页
1/188
重庆市装配式农房建设图集(2024年)装配式钢结构(3#户型)_第2页
2/188
重庆市装配式农房建设图集(2024年)装配式钢结构(3#户型)_第3页
3/188
重庆市装配式农房建设图集(2024年)装配式钢结构(3#户型)_第4页
4/188
重庆市装配式农房建设图集(2024年)装配式钢结构(3#户型)_第5页
5/188
重庆市装配式农房建设图集(2024年)装配式钢结构(3#户型)_第6页
6/188
重庆市装配式农房建设图集(2024年)装配式钢结构(3#户型)_第7页
7/188
重庆市装配式农房建设图集(2024年)装配式钢结构(3#户型)_第8页
8/188
重庆市装配式农房建设图集(2024年)装配式钢结构(3#户型)_第9页
9/188
重庆市装配式农房建设图集(2024年)装配式钢结构(3#户型)_第10页
10/188

✅当您赞助下载文档后,并不意味着购买了版权,不得用于商业用途(直接或间接盈利)。
✅本站所有内容均由热心网友分享,本站不对文档的完整性、正确性做任何保证!文档内容仅供预览参考。

✅十六年老网站,赞助会员全站免币!每天更新!
✅本站已经工信部、公安部备案,真实可信!

1、打开文档需要使用基本的办公软件,如Word、Office、WPS、Pdf、Cad、Rar、Zip等。

2、如遇下载失败、解压失败、文档缺失等问题,请通过【反馈】按钮提交。

下载文档
确认删除?