文档详情

房建项目搅拌桩支护专项方案(28P)优质

doc
2.03MB
约39页
63
2024-03-26
房建项目搅拌桩支护专项方案(28P)_第1页
1/39
房建项目搅拌桩支护专项方案(28P)_第2页
2/39
房建项目搅拌桩支护专项方案(28P)_第3页
3/39
房建项目搅拌桩支护专项方案(28P)_第4页
4/39
房建项目搅拌桩支护专项方案(28P)_第5页
5/39
房建项目搅拌桩支护专项方案(28P)_第6页
6/39
房建项目搅拌桩支护专项方案(28P)_第7页
7/39
房建项目搅拌桩支护专项方案(28P)_第8页
8/39
房建项目搅拌桩支护专项方案(28P)_第9页
9/39
房建项目搅拌桩支护专项方案(28P)_第10页
10/39
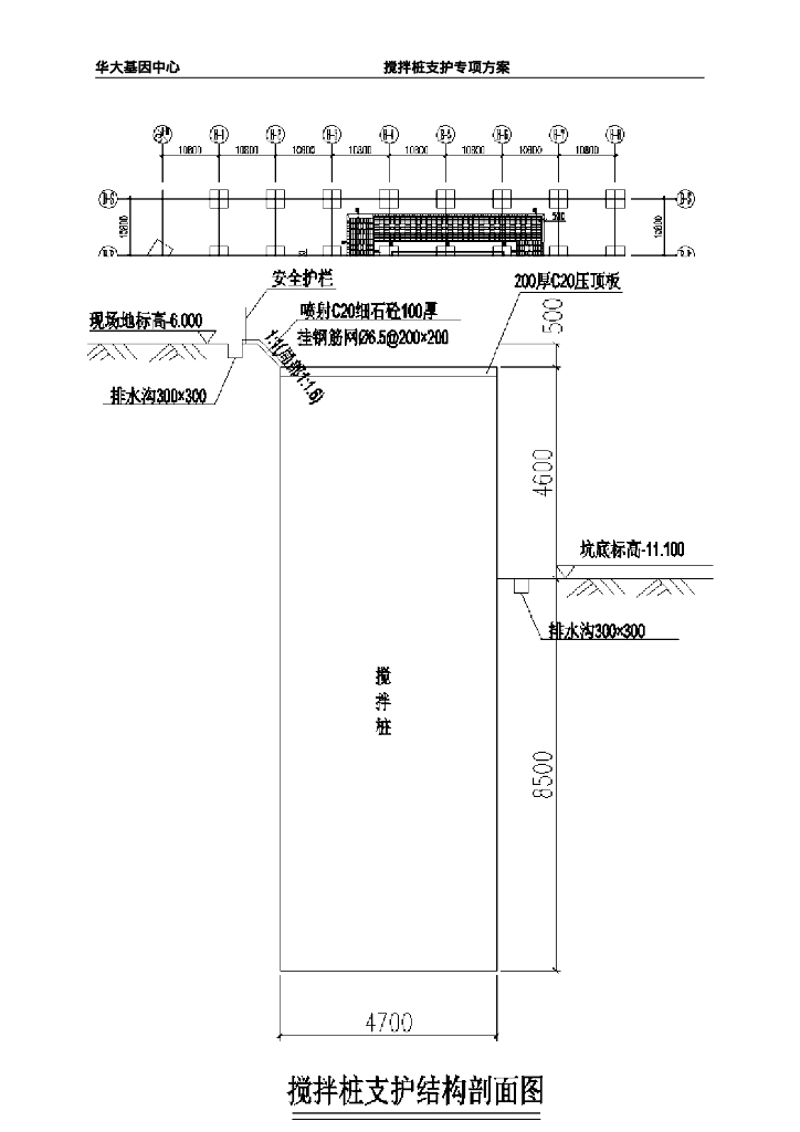
本基坑支护方案采用放坡喷砼+格栅式水泥土搅拌桩挡墙,设计从地下室承台边线后退1m作为基坑开挖坡底线。...

✅当您赞助下载文档后,并不意味着购买了版权,不得用于商业用途(直接或间接盈利)。
✅本站所有内容均由热心网友分享,本站不对文档的完整性、正确性做任何保证!文档内容仅供预览参考。

✅十六年老网站,赞助会员全站免币!每天更新!
✅本站已经工信部、公安部备案,真实可信!

1、打开文档需要使用基本的办公软件,如Word、Office、WPS、Pdf、Cad、Rar、Zip等。

2、如遇下载失败、解压失败、文档缺失等问题,请通过【反馈】按钮提交。

下载文档
确认删除?