文档详情

知名房企样板房固化手册(D标)优质

pdf
16.33MB
约79页
74
2024-03-30
知名房企样板房固化手册(D标)_第1页
1/79
知名房企样板房固化手册(D标)_第2页
2/79
知名房企样板房固化手册(D标)_第3页
3/79
知名房企样板房固化手册(D标)_第4页
4/79
知名房企样板房固化手册(D标)_第5页
5/79
知名房企样板房固化手册(D标)_第6页
6/79
知名房企样板房固化手册(D标)_第7页
7/79
知名房企样板房固化手册(D标)_第8页
8/79
知名房企样板房固化手册(D标)_第9页
9/79
知名房企样板房固化手册(D标)_第10页
10/79
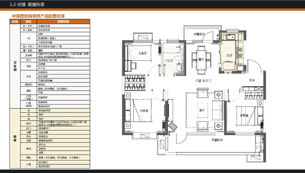
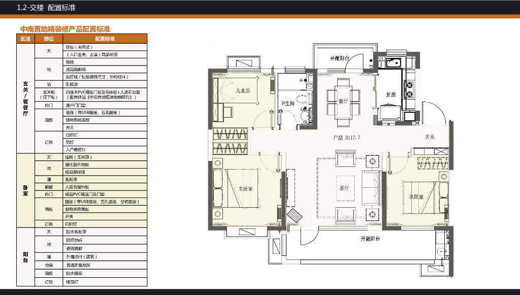
本资料为知名房企样板房固化手册(D标),PDF格式,共79页。适用于三四线首改。目录:一、综述:产品...

✅当您赞助下载文档后,并不意味着购买了版权,不得用于商业用途(直接或间接盈利)。
✅本站所有内容均由热心网友分享,本站不对文档的完整性、正确性做任何保证!文档内容仅供预览参考。

✅十六年老网站,赞助会员全站免币!每天更新!
✅本站已经工信部、公安部备案,真实可信!

1、打开文档需要使用基本的办公软件,如Word、Office、WPS、Pdf、Cad、Rar、Zip等。

2、如遇下载失败、解压失败、文档缺失等问题,请通过【反馈】按钮提交。

下载文档
确认删除?